onvex@onvex.ru
© 2023
Версия сайта 0.1
При поддержке
"ОНВЕКС"
Промосайт проекта
"Устойчивая архитектура Дачной Горки"
Оператор проекта
ООО ОНВЕКС
delo@onvex.ru
+7 (951) 231-05-90
Дачная горка
Технологии устойчивой архитектуры
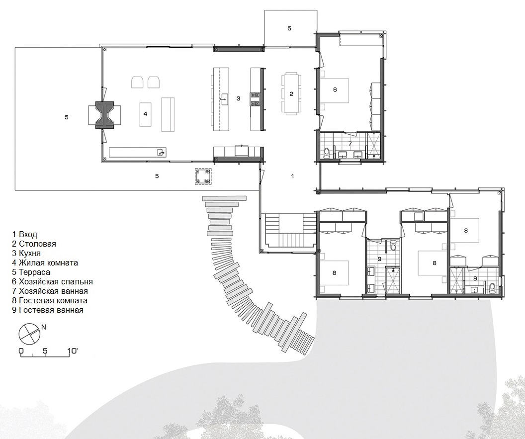
Внутри дома жители находятся большую часть времени, но при этом преимущества дома  в открытости окружающему миру, возможности быть «и дома, и на природе одновременно"
Выделение зон постоянного проживания, готевого проживания, открытые пространства дом-улица, хозяйственные и технические помещения.
Вариация оконных проёмов в зависимости от функционального назначения помещения: большие окна в видовых местах и минимально необходимые в жилых комнатах.
Место нахождения дома
Планировка окружения
Сообщество соседей
Инженерные сети
Технологии строительства
Планировка строения
Планировка строения